Железобетонные футерованные балки тепловых камер Б-3-1-фут – это высокопрочные изделия специального назначения, которые используются при прокладке подземных коммуникаций: систем водопровода, канализации и газовых сетей. Тепловые камеры служат для размещения узлов теплопроводов, а также оборудования, требующего постоянного обслуживания в процессе эксплуатации и, при необходимости, ремонта. Кроме того, с помощью камер осуществляется сопряжение труб разного размера и их пересечение.
Тепловые камеры позволяют устанавливать следующее оборудование: задвижки, сальниковые компенсаторы, дренажные и воздушные устройства, контрольно-измерительные приборы и другое оборудование. Также в камерах устанавливаются ответвления к потребителям и неподвижные опоры. Среда, в которой находятся теплокамеры, характеризуется различным уровнем влажности, которая образуется в грунте, а также в испарениях от теплопроводов, поэтому она может сильно меняться на всем протяжении эксплуатации. Поэтому для случаев, когда эти испарения образовываются в слишком большом количестве (например, когда сквозь камеру проходят несколько трубопроводов), применяется футеровка.
Камеры тепловые футерованные – это изделия, внутренняя, рабочая поверхность которых обрабатывается специальными полиэтиленовыми листами. Футеровка или облицовка сборных камер полиэтиленовыми листами применяется для защиты внутренних поверхностей изделий от преждевременного разрушения при эксплуатации в агрессивной среде. Помимо этого, футерованные балки тепловых камер Б-3-1-фут приобретают повышенную стойкость к различным химическим соединениям и механическим воздействиям.
Футеровка – сравнительно новая технология, которая применяется для защиты железобетонных изделий от разрушения при воздействии агрессивных факторов окружающей среды. Процесс футеровки выглядит таким образом: на внутренние стенки сборных изделий камер прикрепляются полиэтиленовые листы толщиной от 2 до 8 мм, которая подбирается, исходя из размеров каждого элемента. Листы крепятся к сборным элементам с помощью специального клея. Между собой листы соединяются посредством экструзионной сварки. Футерованные железобетонные изделия также носят название – полимерно-бетонные изделия.
Футерованные балки тепловых камер Б-3-1-фут по сравнению с идентичными изделиями без облицовки обладают множеством преимуществ. Высокая химическая стойкость полиэтилена обеспечивает бетонным конструкциям, которые работают в химически агрессивной среде, долговременную защиту от коррозии. Физические характеристики изделий не меняются даже при значительных и постоянных деформационных нагрузках. Футерованные теплофикационные камеры имеют гладкую поверхность, которая характеризуется низким коэффициентом трения, она также легко чистится и препятствует образованию наростов. Изготовленные из полиэтилена пластины нетоксичны и экологически безопасны. Кроме того, футерованные ЖБИ служат в разы дольше, ведь на внутренних стенах изделий даже спустя значительное время не образовываются трещины, сколы и осыпания бетонной крошки.
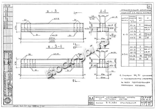
Футерованные балки тепловых камер Б-3-1-фут изготавливаются в соответствии нормами, указанными в ТУ-5853-008-03984178-98, ТУ-401-29-77-95 и серии 3.903 КЛ-13 «Теплоснабжение. Сборные железобетонные камеры на тепловых сетях», по которой производятся типовые теплофикационные камеры.
В качестве материала для изготовления камер применяется гидротехнический бетон класса В22,5 по прочности на сжатие. Отпускная прочность бетона принимается не ниже 70% проектной прочности. Класс бетона по морозостойкости назначается не ниже F150, по водонепроницаемости – W4.
Армирование футерованных изделий производится сварными сетками и каркасами из стержневой горячекатаной стали классов А-I, А-II и А-III. Подъемные петли для удобства монтажа изготавливаются из арматурной гладкой стали класса А-I. Изготовление сеток и каркасов производится контактной точечной электросваркой. Все закладные детали имеют антикоррозийное цинковое покрытие толщиной 150 мм.
Железобетонные футерованные балки тепловых камер Б-3-1-фут – конструкции высокой ответственности, от качества их изготовления зависит надежность и стабильность работы коммуникационных сетей и оборудования. Поэтому стандартами предусмотрен ряд технических требований к изготовлению и внешнему виду изделий. Поверхность изделий не должна содержать трещин, наплывов бетона. Допускаются лишь небольшие раковины, диаметр которых не должен превышать 10 мм, при этом на каждый погонный метр допускается не более одной раковины.
Футерованн
ые балки тепловых камер Б-3-1-фут должны быть изготовлены в точном соответствии с размерами, указанными в сериях, типовых проектах и чертежах. Незначительные допускаемые отклонения от проектных размеров не должны превышать: ±10 мм – по длине, ширине и высоте изделий; ±5 мм – по толщине; ±5 мм – по толщине защитного слоя бетона.
Железобетонные балки тепловых камер Б-3-1-фут складируются и транспортируются в штабелях, высота которых не должна превышать более 2 метров, с обеспечением устойчивости и соблюдением требований техники безопасности. Каждое изделие укладывается на две деревянные прокладки толщиной не менее 30 мм. Прокладки должны устанавливаться на тех же расстояниях от торцов элементов, что и монтажные петли.
В компании ГК «БЛОК» можно не только заказать железобетонные футерованные балки тепловых камер Б-3-1-фут, но и проконсультироваться с нашими специалистами, подобрать требуемые конструкции железобетонных изделий. В нашем отделе продаж можно заранее узнать и уточнить цену футерованных тепловых камер и рассчитать общую стоимость заказа. Купить сборные железобетонные камеры на тепловых сетях и проконсультироваться по общим вопросам покупки и доставки Вы можете, позвонив по телефонам компании ГК «БЛОК»: Санкт-Петербург: (812) 309-22-09, Москва: (495) 646-38-32, Краснодар: (861) 279-36-00. Режим работы компании: Пн-Пт с 9-00 до 18-00. Компания ГК «БЛОК» осуществляет доставку железобетонных камер тепловых сетей по всей России прямо до объекта заказчика или на строительную площадку, если позволяет инфраструктура.
|
ГОСТ/Серия
|
Серия 3.903 КЛ-13 вып.1-6 |
|
Длина, мм
|
3950 |
|
Ширина, мм
|
600 |
|
Высота, мм
|
470 |
|
Масса, тонн
|
2.13 |
|
Объем бетона, куб.м
|
0.85 |
|
Класс бетона
|
В22,5 |
|
Геометрический объем, м.куб
|
3.903 КЛ-13 вып.1-7 |
|
Сталь, кг
|
359 |
Как купить
Процесс покупки железобетонных изделий у нас прост и удобен. Следуйте этим шагам:
- Выбор продукции: Ознакомьтесь с нашим ассортиментом и выберите необходимые железобетонные изделия.
- Консультация: Свяжитесь с нашим менеджером для получения консультации по выбору продукции и уточнения всех деталей. Вы можете позвонить нам или написать на электронную почту.
- Оформление заказа: После согласования всех деталей оформите заказ. Менеджер поможет вам заполнить все необходимые документы.
- Согласование доставки: После оформления заказа наш менеджер свяжется с вами для согласования условий и сроков доставки.
- Оплата: Выберите удобный способ оплаты. Мы предлагаем несколько вариантов, включая безналичный расчет.
- Получение товара: После выполнения всех условий заказа, вы получите железобетонные изделия в назначенное время и по согласованному адресу. При получении подпишите акт приема-передачи.
Если у вас возникли вопросы на любом этапе покупки, не стесняйтесь обращаться к нашим менеджерам!
Оплата
Мы принимаем только безналичные платежи и работаем исключительно с юридическими лицами. Пожалуйста, ознакомьтесь с условиями оплаты ниже:
- Способ оплаты: Все расчеты производятся безналичным путем. Мы не принимаем наличные.
- Счет на оплату: После оформления заказа вам будет выставлен счет, который необходимо оплатить в срок, указанный в документе.
- Реквизиты: Все необходимые банковские реквизиты будут предоставлены в счете. Убедитесь, что все данные указаны правильно для успешного перевода.
- Подтверждение оплаты: После осуществления платежа отправьте нам подтверждение, чтобы мы могли оперативно обработать ваш заказ.
- Получение документов: После полной оплаты вы получите все необходимые документы, включая акт выполненных работ, товарные накладные и сертификаты на продукцию.
Мы работаем с НДС и предоставляем все необходимые сертификаты и документы. Все гарантии будут прописаны в договоре, что обеспечивает прозрачность и надежность сотрудничества.
Если у вас есть вопросы по поводу процесса оплаты, не стесняйтесь обращаться к нашим менеджерам за помощью!
Наша оперативность — ваше удобство. Мы гарантируем своевременную доставку железобетонных изделий, что является ключевым фактором для успешной реализации ваших строительных проектов. Доставка осуществляется прямо к вашему объекту с учетом всех стандартов качества.
Основные условия доставки:
• Выбор тарифа: Вы можете выбрать способ расчета стоимости доставки — почасовой или по зонам.
• Согласование: Менеджер свяжется с вами для уточнения деталей после оформления заказа.
• Время на погрузку: Комплектация товара занимает от 1 до 3 дней в зависимости от объема.
• Акт приема-передачи: Продукция передается по акту приема-передачи.
Тарифы на доставку:
Цены варьируются в зависимости от расстояния и региона. Все тарифы включают НДС. При неблагоприятных погодных условиях возможны небольшие изменения в стоимости.
География доставки:
Мы работаем по всей территории РФ и имеем 12 офисов и производств, чтобы обеспечить удобные условия для доставки.
Для точного расчета стоимости доставки обращайтесь к нашим менеджерам!

