Описание балки 1БСП 12-1 К7
Балка (1БСП 12-1 К7) применяется для устройства перекрытий и покрытий в зданиях промышленного и гражданского назначения. Изделие изготавливается компанией ГК "БЛОК", которая специализируется на производстве и поставке железобетонных изделий в Москве, из высокопрочного бетона класса В30 с армированием стальной арматурой, что обеспечивает её прочность, устойчивость к нагрузкам и долговечность.
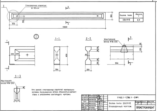
Нормативный документ: Серия 1.462.1-1/88.
Применение балки 1БСП 12-1 К7
Балка 1БСП 12-1 К7 используется для создания надёжных конструкций перекрытий и покрытий в жилых, промышленных и общественных зданиях. Она служит важной частью системы, обеспечивающей безопасность, долговечность и функциональность объектов. Для монтажа могут применяться дополнительные элементы: раствор, закладные детали и другие комплектующие.
Типы балок
Железобетонные балки подразделяются на несколько типов в зависимости от назначения и конструкции:
- БСП: балка стропильная предварительно напряжённая;
- БП: балка прямоугольного сечения;
- БУ: балка усиленная;
- БК: балка консольная.
Размеры зависят от типа: длина 11960–12000 мм, ширина 280–300 мм, высота 890–900 мм.
Основные параметры, размеры и характеристики
- Длина L, мм: 11960
- Ширина b, мм: 280
- Высота h, мм: 890
- Масса, тонн: 4.5
- Объем бетона, м³: 1.8
- Класс бетона: B30 (марка М400)
- Геометрический объем, м³: 2.98
- Сталь, кг: 143
- Закладная 1: Сетка С1
- Закладная 2: Сетка С2
- Закладная 3: Сетка С4
- Закладная 4: Сетка С5
Дополнительные характеристики
- Марка по морозостойкости: F200–F300;
- Марка по водонепроницаемости: W6–W8;
- Технология изготовления: натяжение арматуры с использованием высокопрочного бетона.
Нормы загрузки
- Норма загрузки в автотранспорт 20 т, шт: 4
Расшифровка маркировки 1БСП 12-1 К7
Маркировка "1БСП 12-1 К7" содержит следующую информацию:
- 1 – порядковый номер изделия в серии;
- БСП – балка стропильная предварительно напряжённая;
- 12 – условная длина изделия в метрах (11960 мм);
- 1 – расчетная нагрузка или вариант исполнения;
- К7 – использование напрягаемой арматуры класса К7.
Условия транспортировки и хранения
Балки 1БСП 12-1 К7 перевозятся автомобильным или железнодорожным транспортом с использованием специальных захватных устройств (строп). Хранение осуществляется на ровных площадках с твердым покрытием. Балки устанавливаются горизонтально в штабель высотой не более 2,5 м. Для предотвращения повреждений между изделиями устанавливаются деревянные прокладки.
Контроль качества балки 1БСП 12-1 К7
Каждая балка 1БСП 12-1 К7 проходит многоступенчатый контроль качества. Проверяются:
- прочность бетона (не ниже класса B30);
- соответствие геометрических размеров проектным данным;
- морозостойкость и водонепроницаемость бетона;
- точность расположения закладных элементов;
- отсутствие трещин, сколов и других дефектов.
Заключение
Балка 1БСП 12-1 К7 – это надежный и долговечный элемент для устройства перекрытий и покрытий. Благодаря использованию качественных материалов и современных технологий производства, она обеспечивает прочность, устойчивость и долговечность конструкций. Для заказа качественных железобетонных изделий обращайтесь к профессионалам своего дела – компании ГК "БЛОК".
Смотрите также:
| Варианты написания товара |
|---|
| Балка 1БСП 12-1 К7 |
| 1БСП 12-1 К7 балка |
| Балка 1БСП 12-1 К7 Серия 1.462.1-1/88 |
| 1БСП 12-1 К7 Серия 1.462.1-1/88 |
| 1БСП 12-1 К7 |
| Балка 1БСП 12-1 К7 ГОСТ |
| 1БСП 12-1 К7 ГОСТ |
|
ГОСТ/Серия
|
Серия 1.462.1-1/88 |
|
Длина, мм
|
11960 |
|
Ширина, мм
|
280 |
|
Высота, мм
|
890 |
|
Масса, тонн
|
4.5 |
|
Объем бетона, куб.м
|
1.8 |
|
Класс бетона
|
В30 |
|
Геометрический объем, м.куб
|
2.98 |
|
Сталь, кг
|
143 |
|
Закладная 1
|
Сетка С1 |
|
Закладная 2
|
Сетка С2 |
|
Закладная 3
|
Сетка С4 |
|
Закладная 4
|
Сетка С5 |
Как купить
Процесс покупки железобетонных изделий у нас прост и удобен. Следуйте этим шагам:
- Выбор продукции: Ознакомьтесь с нашим ассортиментом и выберите необходимые железобетонные изделия.
- Консультация: Свяжитесь с нашим менеджером для получения консультации по выбору продукции и уточнения всех деталей. Вы можете позвонить нам или написать на электронную почту.
- Оформление заказа: После согласования всех деталей оформите заказ. Менеджер поможет вам заполнить все необходимые документы.
- Согласование доставки: После оформления заказа наш менеджер свяжется с вами для согласования условий и сроков доставки.
- Оплата: Выберите удобный способ оплаты. Мы предлагаем несколько вариантов, включая безналичный расчет.
- Получение товара: После выполнения всех условий заказа, вы получите железобетонные изделия в назначенное время и по согласованному адресу. При получении подпишите акт приема-передачи.
Если у вас возникли вопросы на любом этапе покупки, не стесняйтесь обращаться к нашим менеджерам!
Оплата
Мы принимаем только безналичные платежи и работаем исключительно с юридическими лицами. Пожалуйста, ознакомьтесь с условиями оплаты ниже:
- Способ оплаты: Все расчеты производятся безналичным путем. Мы не принимаем наличные.
- Счет на оплату: После оформления заказа вам будет выставлен счет, который необходимо оплатить в срок, указанный в документе.
- Реквизиты: Все необходимые банковские реквизиты будут предоставлены в счете. Убедитесь, что все данные указаны правильно для успешного перевода.
- Подтверждение оплаты: После осуществления платежа отправьте нам подтверждение, чтобы мы могли оперативно обработать ваш заказ.
- Получение документов: После полной оплаты вы получите все необходимые документы, включая акт выполненных работ, товарные накладные и сертификаты на продукцию.
Мы работаем с НДС и предоставляем все необходимые сертификаты и документы. Все гарантии будут прописаны в договоре, что обеспечивает прозрачность и надежность сотрудничества.
Если у вас есть вопросы по поводу процесса оплаты, не стесняйтесь обращаться к нашим менеджерам за помощью!
Наша оперативность — ваше удобство. Мы гарантируем своевременную доставку железобетонных изделий, что является ключевым фактором для успешной реализации ваших строительных проектов. Доставка осуществляется прямо к вашему объекту с учетом всех стандартов качества.
Основные условия доставки:
• Выбор тарифа: Вы можете выбрать способ расчета стоимости доставки — почасовой или по зонам.
• Согласование: Менеджер свяжется с вами для уточнения деталей после оформления заказа.
• Время на погрузку: Комплектация товара занимает от 1 до 3 дней в зависимости от объема.
• Акт приема-передачи: Продукция передается по акту приема-передачи.
Тарифы на доставку:
Цены варьируются в зависимости от расстояния и региона. Все тарифы включают НДС. При неблагоприятных погодных условиях возможны небольшие изменения в стоимости.
География доставки:
Мы работаем по всей территории РФ и имеем 12 офисов и производств, чтобы обеспечить удобные условия для доставки.
Для точного расчета стоимости доставки обращайтесь к нашим менеджерам!

